Type

Search words under length of 4 characters are not processed.

Stoßfuge, mit Lisene als Schwertprofil

Fassadensysteme - Stulppaneel
PDF 182 KB

Fußpunkt, mit Rahmenprofil teilperforiert

Fassadensysteme - Wellprofil
PDF 175 KB

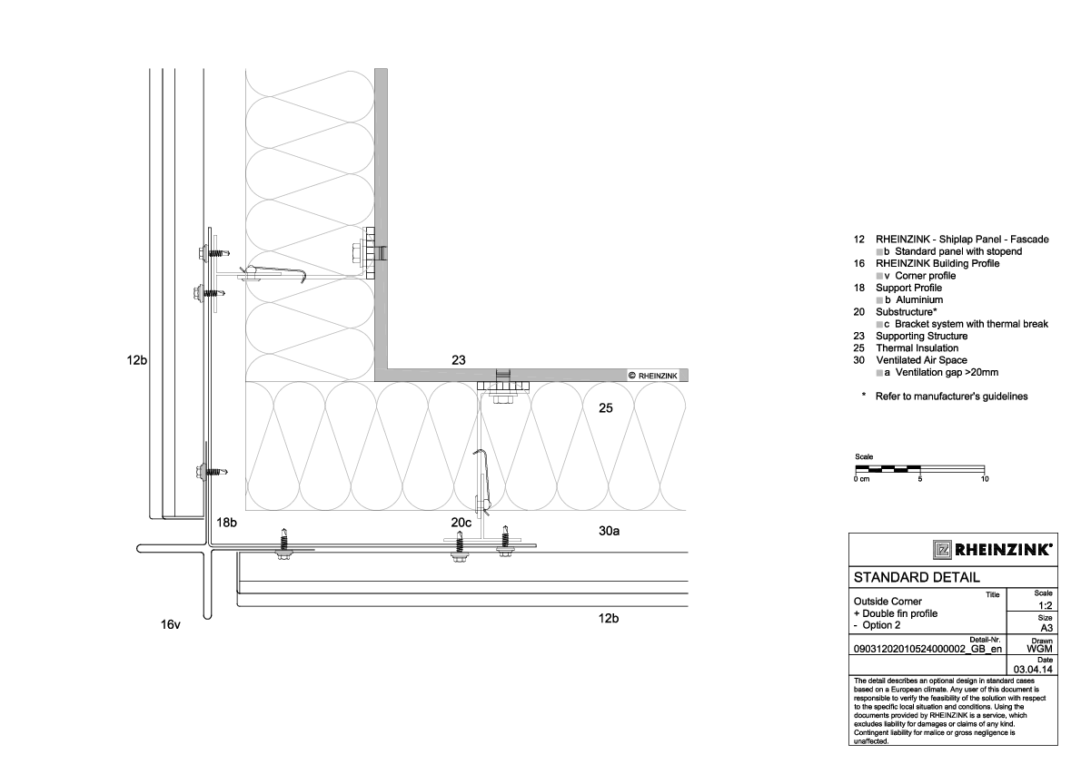
Outside corner, double fin profile

Shiplap Panel
pdf 188 KB

Inside corner, flush profile

Shiplap Panel
pdf 183 KB

Fensterleibung, mit Rahmenprofil

Fassadensysteme - Wellprofil
PDF 178 KB

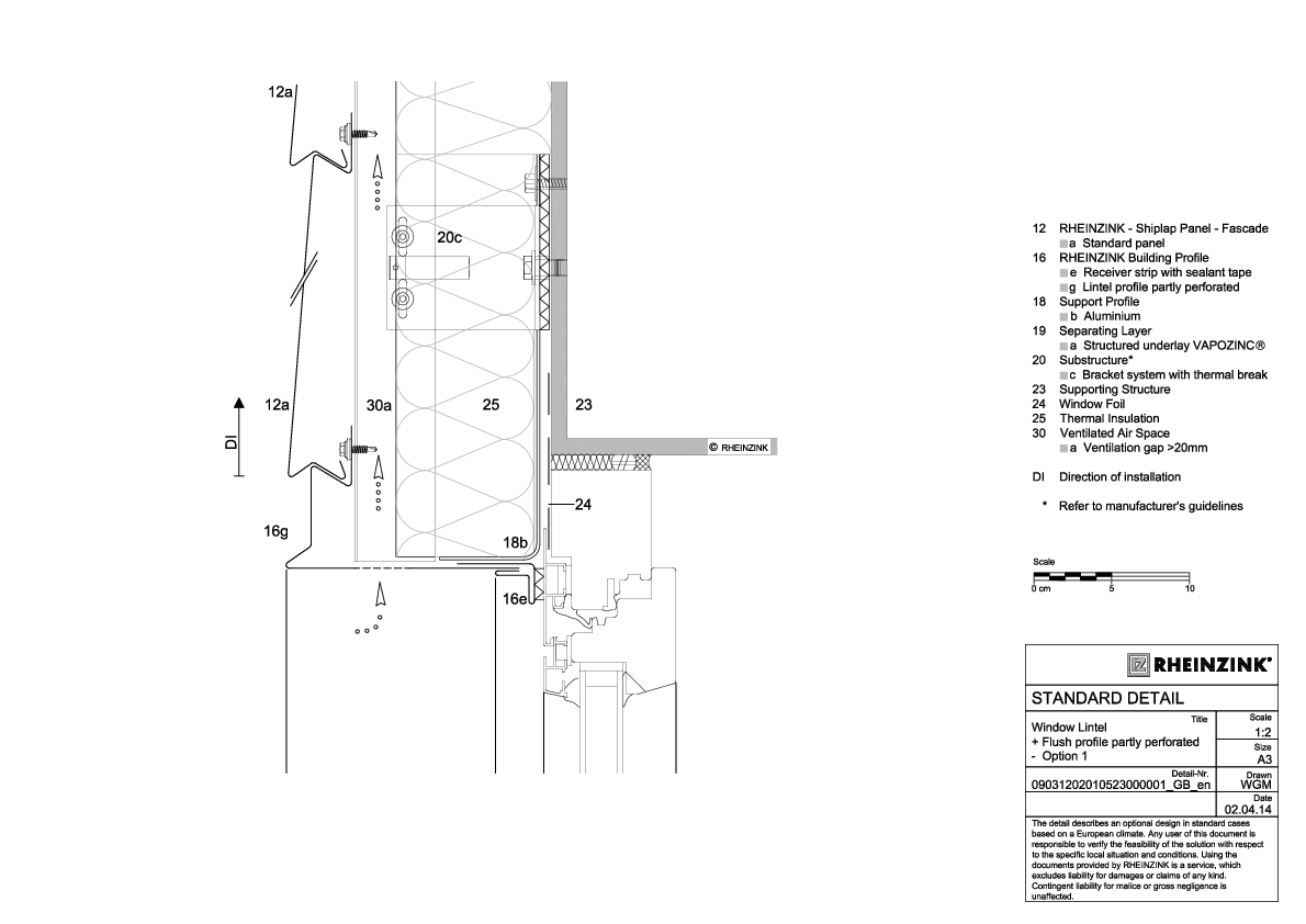
Fenstersturz, mit Rahmenprofil teilperforiert

Fassadensysteme - Wellprofil
PDF 182 KB

Außenecke, mit Rahmenprofil

Fassadensysteme - Wellprofil
PDF 172 KB

Innenecke, mit Eckprofil 7-fach gekantet

Fassadensysteme - Wellprofil
PDF 169 KB

Stoßfuge, mit Lisene als Rahmenprofil

Fassadensysteme - Wellprofil
PDF 169 KB

rheinzink-logo-black-without-whitespace

You are on our global website.
Would you like to stay on rheinzink.com or visit the local RHEINZINK America website?

Go to RHEINZINK America